Εντατικά προχωρούν οι εργασίες αναπαλαίωσης του παλαιού βιομηχανικού κτιρίου της Συκικής στους Μολάους για τη μετατροπή του σε κέντρο πολιτιστικών, ψυχαγωγικών και αθλητικών δραστηριοτήτων. Επιδίωξη του πρότζεκτ, τα «θεμέλια» του οποίου τέθηκαν πριν μερικά χρόνια, είναι η πρώην παραγωγική μονάδα να αναγεννηθεί εκ βάθρων και προϊόντος των παρεμβάσεων και του χρόνου να καταστεί ένα ξεχωριστό, όσο και πολύτιμο σημείο αναφοράς για τους δημότες και την κοινωνική ζωή του τόπου.
Η σύμβαση του έργου, συνολικού προϋπολογισμού 1.150.000 ευρώ, είχε συναφθεί στις 30 Νοεμβρίου 2021 μεταξύ του δημάρχου Μονεμβασίας, Ηρακλή Τριχείλη κι εκπροσώπου της αναδόχου εταιρείας.
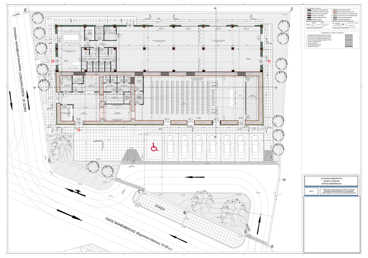
Αίθουσα πολλαπλών χρήσεων και γυμναστήριο
με βιοκλιματικό «αποτύπωμα»
Η αποκατάσταση του οικοδομήματος εκτείνεται σε επιφάνεια 640 τμ, που θα αξιοποιηθεί για την κατασκευή των προβλεπόμενων υποδομών, ενώ παράλληλα, διενεργείται η ανάπλαση του περιβάλλοντος χώρου. Οι αναπτυσσόμενες τεχνικές εφαρμόζονται «με γνώμονα τον βιοκλιματικό σχεδιασμό και σκοπό τη δημιουργία των βέλτιστων εγκαταστάσεων για την άρτια λειτουργία του ως κέντρου αθλητικών, πολιτιστικών και ψυχαγωγικών δραστηριοτήτων», λέει στον «Λακωνικό Τύπο» ο αντιδήμαρχος κ. Κωνσταντίνος Μαυρομιχάλης.
Όπως γνωστοποιεί ο ίδιος και σύμφωνα με τον σχεδιασμό, το δυτικό τμήμα του κτιρίου θα χρησιμοποιηθεί ως αίθουσα πολλαπλών χρήσεων με χώρο υποδοχής, ενώ το ανατολικό τμήμα θα στεγάσει ένα νέο σύγχρονο δημοτικό γυμναστήριο με τους βοηθητικούς προβλεπόμενους χώρους.
Το έργο χρηματοδοτείται από το Ευρωπαϊκό Ταμείο Περιφερειακής Ανάπτυξης (ΕΤΠΑ) και εθνικούς πόρους μέσω του Προγράμματος Δημοσίων Επενδύσεων, στο πλαίσιο του Επιχειρησιακού Προγράμματος «Ανταγωνιστικότητα Επιχειρηματικότητα Καινοτομία 2014-2020».
Το πλέγμα των εργασιών
Παρά τις καθυστερήσεις που παρατηρήθηκαν το προηγούμενο διάστημα, είναι δεδομένη η θέληση και η αποφασιστικότητα για την ολοκλήρωση του έργου, όπως καταδεικνύουν οι πυρετώδεις ρυθμοί που καταγράφονται στην παρούσα περίοδο στο εργοτάξιο.
Συγκεκριμένα, στην τρέχουσα φάση υλοποιούνται εργασίες για τη διαμόρφωση του περιβάλλοντος χώρου (σκυροδέτηση τοιχίων στα όρια του έργου), διαμόρφωση σιδηρού οπλισμού και αγκυρώσεις βλήτρων, ώστε ακολούθως να προχωρήσει η εφαρμογή εκτοξευόμενου σκυροδέματος.
Συνολικά, οι εργασίες που περιλαμβάνει ο σχεδιασμός είναι: Καθαιρέσεις – αποξηλώσεις, εκσκαφές, στατικές ενισχύσεις – σκυροδέματα, στέγες, μονώσεις – εξωτερική θερμομόνωση κελύφους, λιθοδομές – στηθαία – επιχρίσματα, δάπεδα, εσωτερικά χωρίσματα – επενδύσεις, οροφές, κουφώματα, ξυλουργικά, σιδηρουργικά, χρωματισμοί, φωτισμός, ισχυρά – ασθενή ρεύματα, θέρμανση κλιματισμός – εξαερισμός, δομημένη καλωδίωση κ.α..
Με παρελθόν 57 ετών
προς μια νέα αρχή
Το κτίριο της Συκικής λειτούργησε για πρώτη φορά το 1966, με 20 περίπου εργαζομένους, ως χώρος για την αποστείρωση, τη συγκέντρωση, την απεντόμωση, την αποξήρανση και την αποθήκευση ξηρών σύκων του τοπικού συνεταιρισμού, η παραγωγή του οποίου άγγιζε κάθε χρόνο τους 600-700 τόνους προϊόντος.
Αργότερα, όταν η Συκική ανέστειλε τη δραστηριότητά της στο εν λόγω κτίριο, οι εγκαταστάσεις παρέμειναν ανεκμετάλλευτες για πολλά χρόνια μέχρι και σήμερα. Πλέον, οι αρμόδιοι θέλουν να αλλάξουν άρδην την εικόνα του ερειπωμένου και «σιωπηρού» οικοδομήματος, δίνοντάς του και πάλι ζωή και δράση.
Ενημερωθείτε για όλη την επικαιρότητα της Λακωνίας και όχι μόνο μέσα από τη συνεχή ροή του www.lakonikos.gr. Κάνετε like στη σελίδα και γίνετε μέλος στην ομάδα του lakonikos.gr στο Facebook για να μαθαίνετε τα νέα πρώτοι! Με το κύρος και την αξιοπιστία του «Λακωνικού Τύπου», της μοναδικής ημερήσιας εφημερίδας της Λακωνίας με ιστορία 27 και πλέον ετών




